CHILD VICTIMS TRAINING CENTER

National Children’s Alliance

Florham Park, NJ

MARKET SIGNIFICANCE:

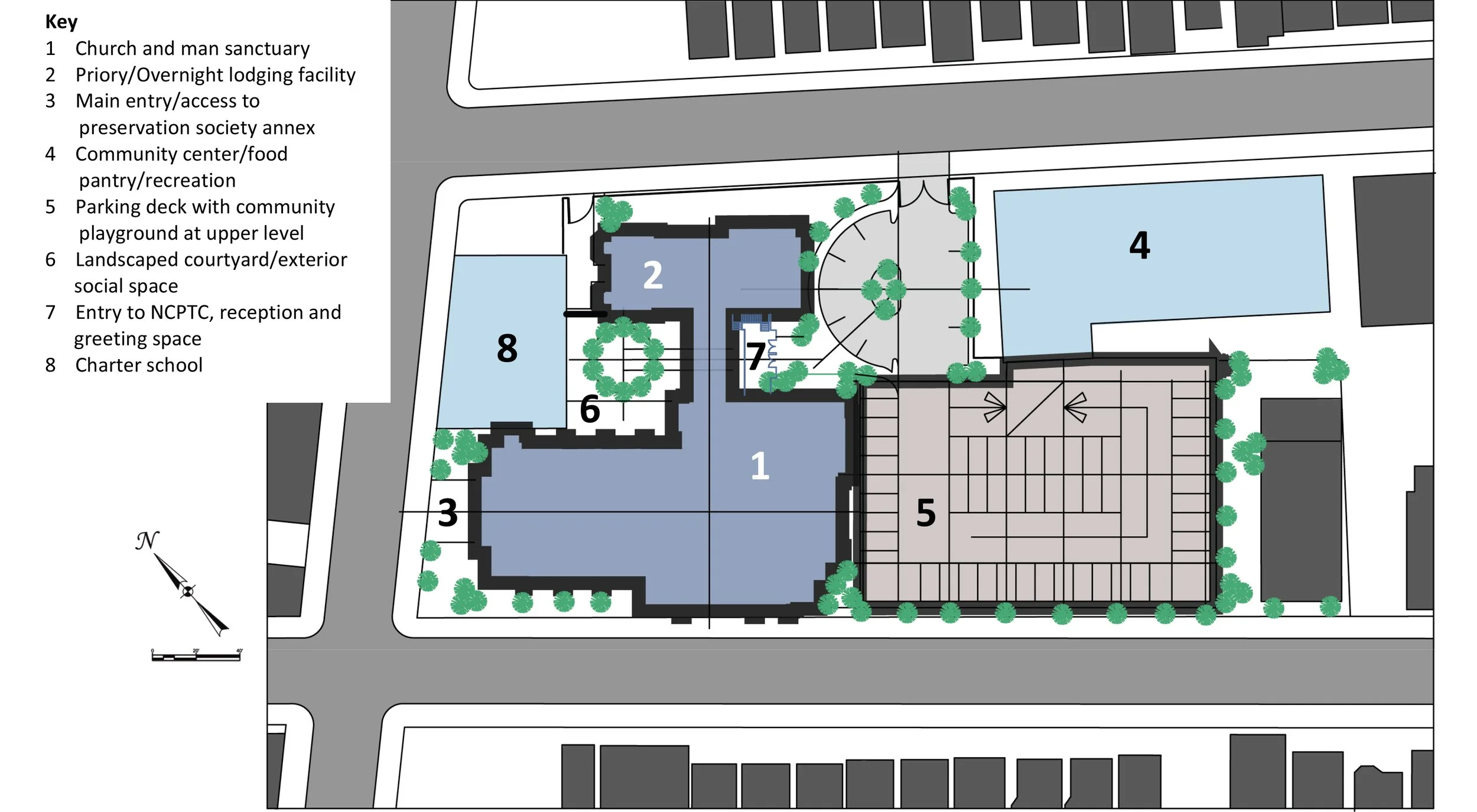
The development of a reuse plan for the historic Sacred Heart Church in the Greenville area of Jersey City, NJ. The national training center is utilized for east coast multi-disciplinary teams engaged in investigations and treatment of child victims of incest and sexual abuse.

BENCHMARKS:

A historic structure designed by Ralph Adam Cram, is a distinct example of gothic revival architecture and an existing asset of the Catholic Archdiocese of Newark. Through this donation to the Child Victims Center, this revival points to a new direction for the archdiocese in its recognition of the needs of child victims of sexual abuse.

PROJECT LEADS:

KG AFFILIATES ENGAGED: